What is a C-Shaped Ceiling?
The ceiling in the C form is a different style of liner ceiling. In this, we employ panels of various widths that can be as long as 6000mm, and the panels are joined together without a gap. A straight or bevel edge can be used in a c-shaped ceiling.
Concept of C-Shaped Ceiling:
The fundamental premise for the development of the c-shaped ceiling is its sanitary qualities. Since there are no gaps between the panels, the environment is completely hygienic from the ceiling side.
Advantages:
With the aid of many colour and combination options, there is a lot of potential to create countless designs, Heightened toughness, A large selection of acoustic characteristics, Plenum access is simple and doesn't require a specific instrument, Freedom to select the various panel sizes.
Acoustic Properties:
Perforation, or punching the panels, is mostly used for acoustic qualities. Punching holes typically have a 1.8mm or 2.5mm diameter. In those days, there were many different types of punching accessible, including square and rectangular ones. People also used punching to create various designs on panels. Attach non-woven acoustic fleece to the underside of the panels after perforating them to increase their acoustic properties. These perforated panels generate acoustic environments by absorbing and distributing sound waves.
Insulation Properties:
Because a closed-type false ceiling in the shape of a C produces a plenum between the main and false ceilings. Plenum serves as an in-ceiling insulator and regulates the environment's temperature in that way. Use glass wool or rock wool pads behind the panels if the project need further insulation.
Design:
You can design the c-shaped ceiling by using panels of various colours. Its V-shaped groove between panels looks stunning even in a c-shaped ceiling.
Size:
In c-shaped panel basically use three size width:
1.75mm
2.150mm
3.300mm.
The length could be a maximum of 6000mm, if the project requirement is more than 6000mm in length, we use a jointer and increase the length.
Where should install c-shaped ceiling?
Ideal for usage in kitchens, pantries, food processing facilities, eateries, canteens, factories, warehouses, showrooms, workshops, malls, galleries, lobby areas, parking lots, bus stops, railroad platforms, airports, power plants, and refineries, among other places.
How decide the width of c-shaped ceiling panels?
If the space is large and you want it to appear compact, you must use 75C panels. If the space is small and you want it to appear loose, use 300C panels. If the space is medium in size, use 150C panels.
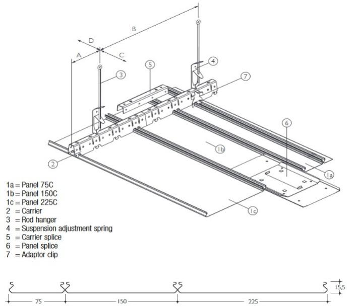
Material Required:
1. Suspension Rod
2.Main Channel Holder
3.Main Channel
4. Main Channel Jointer
5. Fastener
6. C Panel Carrier
7. C Panel
8. C Panel Carrier Holder
9. C Panel Carrier Jointer
10. C Panel Jointer
11. Edge Profile
Installation:
1. Ensure that the Edge Profile is always the same height on each side.
2. Deploy the carrier at a distance of 1.0 to 1.2 meters; if the area is small, install at least two carrier lengths.
3. Constantly utilize a suspension clip and rod suspension.
4. A distance of 1.1–1.2 meters should be used to install the suspension rod.
5. Panels should be carefully secured in the carrier with a soft hand at a 90-degree angle to the carrier.
6. Whenever installing something, make sure to wear gloves.
7. Thoroughly clean the panel before installation, remove any safety guard film before doing so, and look for any stains or blemishes.



